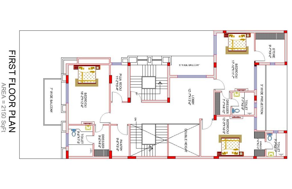
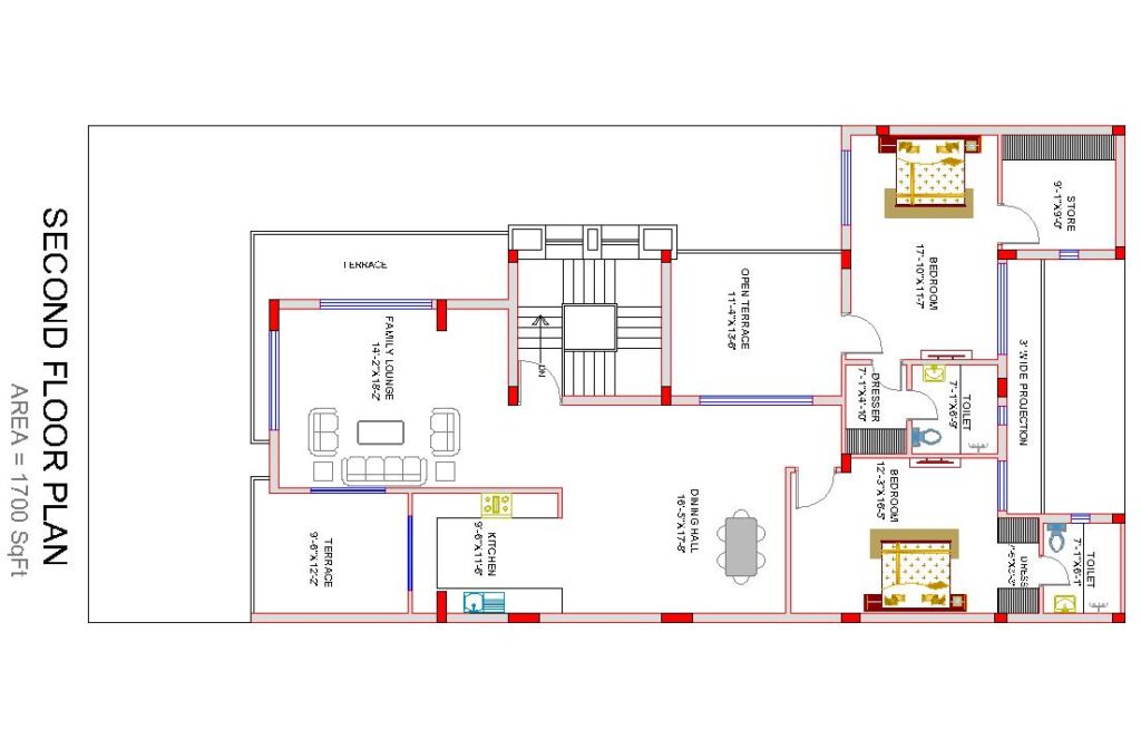
This 30*50 floor plan is perfect for families who want to create their dream home in a beautiful and spacious layout. This design allows homeowners to make the most of natural light and optimize built-in storage spaces throughout the house. It is a 2500 sqft with pooja room, kitchen, bedrooms, bathrooms, drawing room, living room, parking, open garden etc and built-up area for ground floor is 1500 sqft and for first floor built up area is 1500 sqft. Enhance your lifestyle by maximizing modern convenience in this impressive 1500 sqft plot size.



| Plan Description | |
|---|---|
| Plot Area | 2500 sqft |
| Total builtup area | 1500 sqft |
| FRONT | 50ft |
| DEPTH | 50ft |
| Vastu | South Facing Plan |
| Style | 3 BHK House Plans |
| Description | Find stunning 50×50 house plans and 1500 sqft layouts. Discover smart, stylish designs to build your perfect 50*50 dream home today. |
Contact us today to start the process of your 50 feet by 50 feet 3D house plan. Our team of experts will be happy to assist you with any questions or concerns you may have. Let’s bring your vision to life!.

